У нас представлено более 100 товаров, которые вы можете купить в любой удобный для вас момент. В нашем магазине только легальная техника, сертифицированная для продажи в нашей стране.
МО, г.Щелково, ул.Буровая, д.31Б
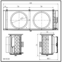
| Холодопроизводительность воздухоохладителя BXH 50.22A | ||||||||
| ∆T1(°С) | 4 | 5 | 6 | 7 | 8 | 10 | 12 | |
| -5 | 12,42 | 15,68 | 18,73 | 22,00 | 25,05 | 31,37 | 37,90 | |
| -8 | 10,89 | 13,72 | 16,56 | 19,17 | 21,78 | 27,45 | 32,89 | |
| -10 | 10,67 | 13,07 | 15,68 | 18,52 | 21,13 | 26,58 | 32,02 | |
| -15 | 10,24 | 12,85 | 15,47 | 17,86 | 20,48 | 25,49 | 30,50 | |
| -20 | 9,58 | 11,98 | 14,38 | 16,77 | 19,17 | 23,96 | 28,75 | |
| -25 | 9,15 | 11,33 | 13,51 | 15,90 | 18,08 | 22,65 | 27,23 | |
| -30 | 8,50 | 10,67 | 12,63 | 15,03 | 16,99 | 21,13 | 25,49 | |
| -35 | 7,62 | 9,80 | 11,76 | 13,72 | 15,68 | 19,60 | 23,53 | |
| -40 | 7,19 | 8,93 | 10,67 | 12,42 | 14,16 | 17,64 | 21,13 | |
| Технические параметры BXH 50.22A | |
|---|---|
| Вентилятор | |
| Модель | YWF4D-500S-137/35-G |
| Диаметр | 500 (мм) |
| Количество | 2 (шт) |
| Напряжение | 3Ф / 380В / 50Гц |
| Мощность | 2х414 (Вт) |
| Расход воздуха | 2х6765 (м3/ч) |
| Дальность струи | 15 (м) |
| Теплообменник | |
| Площадь теплообмена | 80 (м2) |
| Объем труб | 11,58 (л) |
| Диаметр трубы (жидк.) | 19мм |
| Диаметр трубы (всас.) | 32мм |
| Шаг оребрения | 6 (мм) |
| ТЭНы | |
| Количество в испарителе | 5 (шт) |
| Количество в поддоне | 1 (шт) |
| Мощность 1 ТЭНа | 1,45 кВт |
| Мощность (общая) | 8,70 (Вт) |
| Размеры | |
| Д х Ш х В (в упаковке) | 1720 х 710 х 610 |
| Д х Ш х В (без упаковки) | 1820 х 610 х 730 |
| Вес (брутто) | 00.0 (кг) |
| Вес (нетто) | 00.0 (кг) |
| Диаметр сливного отверстия | 1 дюйм |